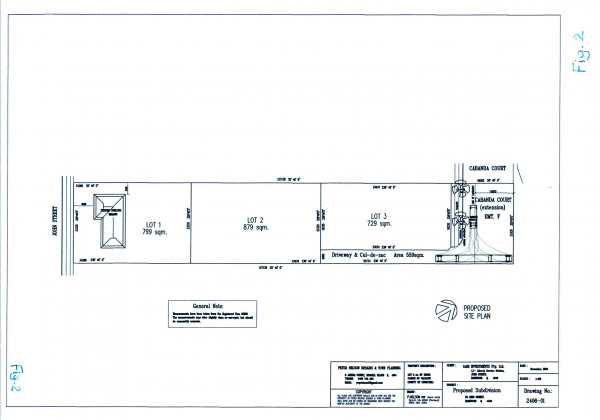
A THREE lot subdivision is planned for a homesite in John Street, Rosewood.
Town planning agents for landowner, Gadi Partosh, have applied to the Ipswich City Council to break a 2,967sqm allotment at 53 John Street.
The plan, if approved, is to encompass the existing home into a 799sqm allotment with access from John Street.
The two rear allotments would gain access off Cabanda Court. The allotment accessing Cabanda Court directly would take in 729sqm.
The 879sqm centre allotment would be battle axe in shape with a driveway through to Cabanda Court.
While the land falls within the ‘town centre secondary business area’ zone, the application documents indicate the two new allotments will be used for residential purposes.
The application is currently under review by Council’s town planners.
















